In vendita
Locale commerciale Negozio - Longarone
Longarone
Longarone - via Roma - 127
333 m²
Classe energetica: G / IPE: 192.24
Riscaldamento: nd Gas metano Termosifoni
Stato immobile: Ottimo
1 Bagni
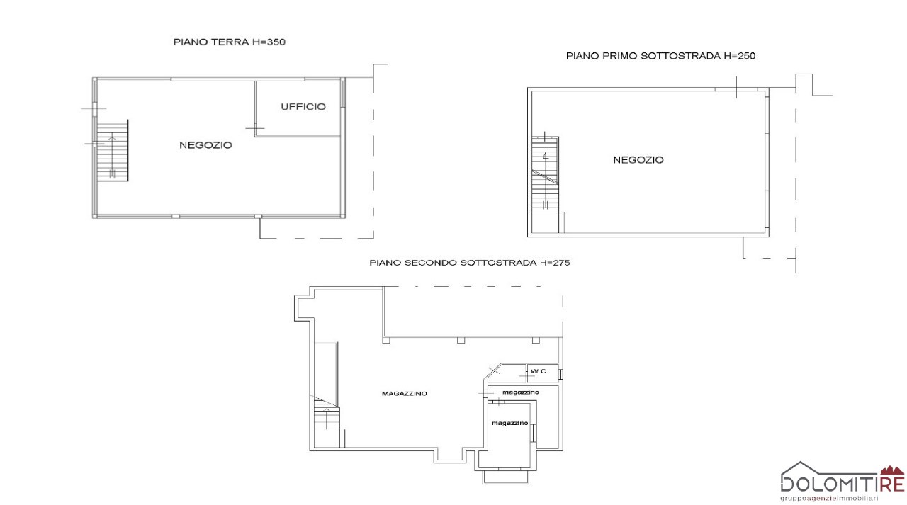
Nel centro di Longarone, in posizione ben visibile e con ampie vetrine che affacciano sulla strada principale, proponiamo in vendita unità ad uso commerciale-direzionale, costituito da negozio con ufficio al piano terra, negozio al piano primo sottostrada, magazzini, anti w.c. e w.c. al piano secondo sottostrada. Nessuna spesa di condominio.



