In vendita

Appartamento - Ponte nelle Alpi

Ponte nelle Alpi

Ponte nelle Alpi - via primo maggio -

106 m²
Classe energetica: A1
Riscaldamento: autonomo Elettricità A pavimento
Stato immobile: Nuova costruzione
2 Camere
2 Bagni
1 Garage
1 Cucina
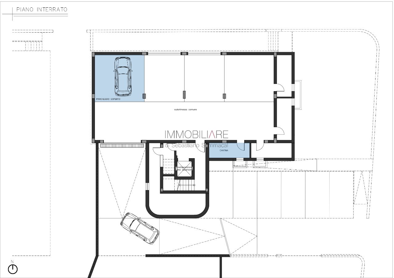
Ponte Nelle Alpi Centro, in via Primo Maggio e di fronte al Parco Mares, in zona residenziale strategica ai servizi, vendesi ampio e luminoso appartamento al Piano Terra in fase di costruzione in esclusivo complesso da quattro unità. L'appartamento sarà composto da ingresso, grande zona giorno composta da cucina con sala da pranza e soggiorno, due bagni, camera singola e camera matrimoniale. La proprietà si completa con giardino privato di circa 25 mq, autorimessa indipendente con cantina al Piano Interrato e ulteriore posto auto esterno di proprietà. Riscaldamento autonomo. La proprietà verrà completata con finiture di qualità e in Classe Energetica A4.

Ponte nelle Alpi - via primo maggio -