In vendita
Appartamento - Ponte nelle Alpi
Ponte nelle Alpi
Ponte nelle Alpi - via primo maggio -
Classe energetica: A1
Riscaldamento: autonomo Elettricità A pavimento
Stato immobile: In costruzione
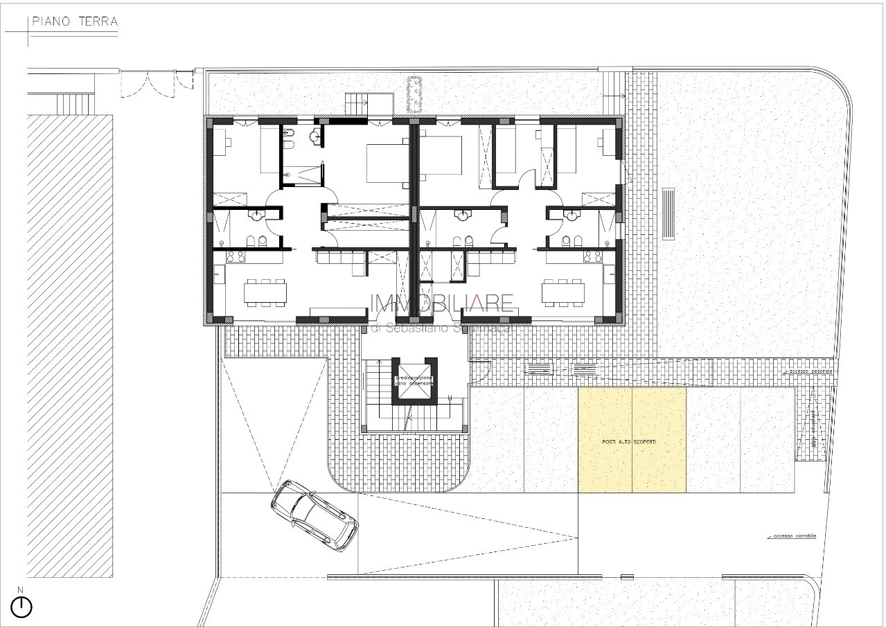
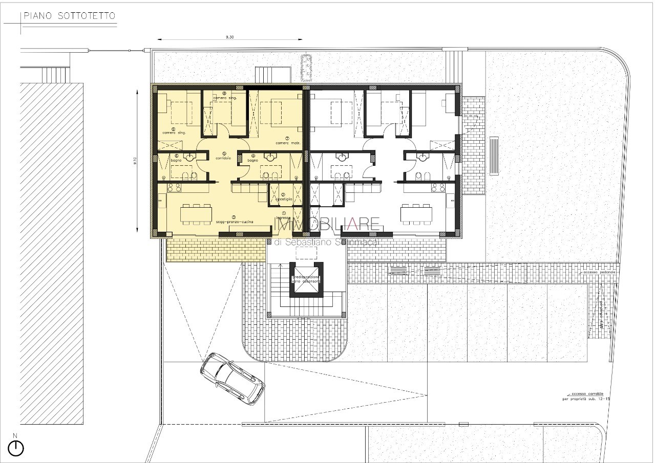
3 Camere
2 Bagni
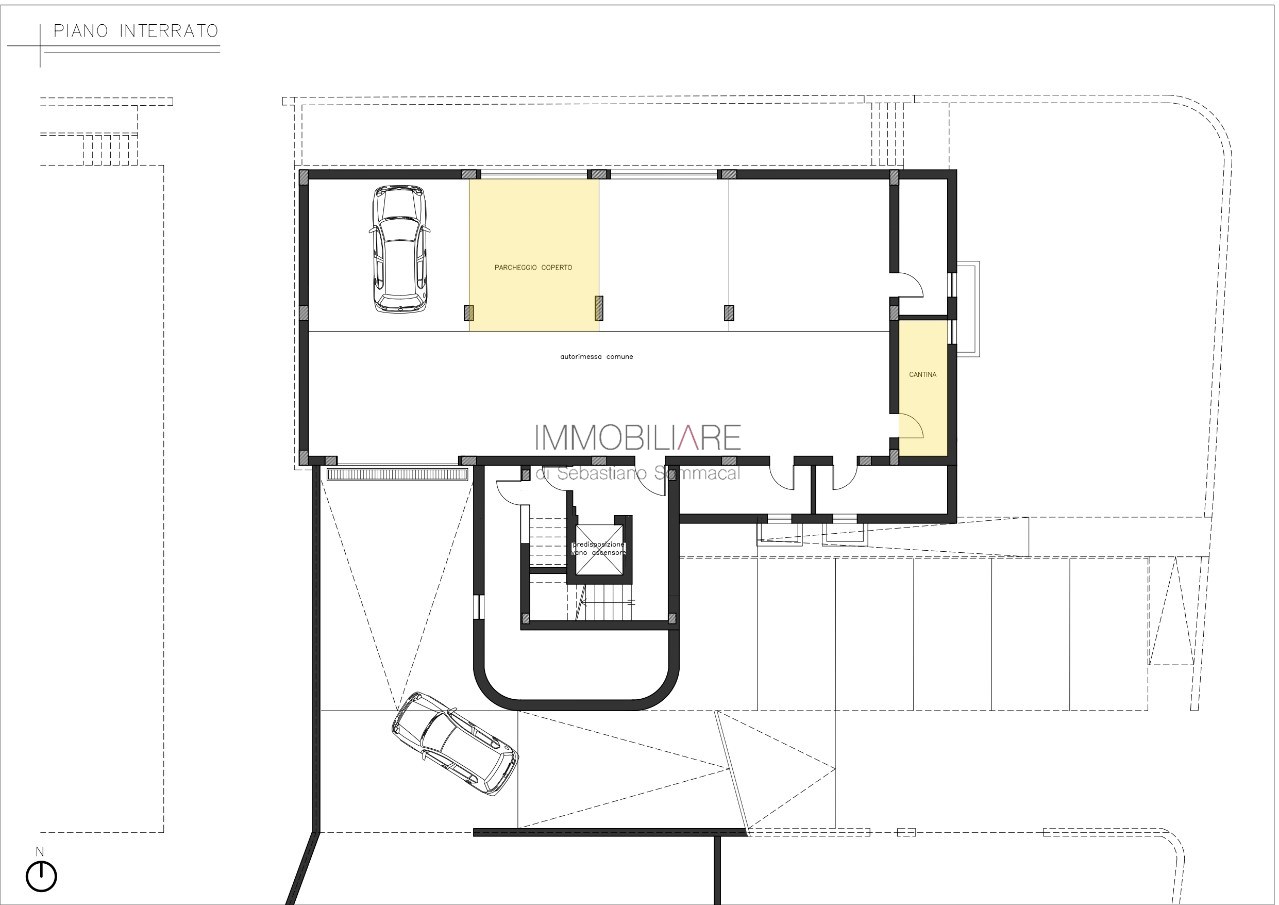
1 Garage
1 Cantina
1 Cucina
1 Soggiorno
Ponte Nelle Alpi Centro, in via Primo Maggio e di fronte al Parco Mares, in zona residenziale strategica ai servizi, vendesi ampio e luminoso appartamento al Piano Primo in fase di costruzione in esclusivo complesso da quattro unità. L'appartamento sarà composto da ingresso, grande zona giorno composta da cucina con sala da pranza e soggiorno, due bagni, due camere singole e camera matrimoniale. La proprietà si completa con terrazzo privato esposto a sud, autorimessa indipendente con cantina al Piano Interrato e doppio posto auto esterno di proprietà. Riscaldamento autonomo. La proprietà verrà completata con finiture di qualità e in Classe Energetica A.



