In vendita

Appartamento - Ponte nelle Alpi

Ponte nelle Alpi

Ponte nelle Alpi - RIONE SANTA CATERINA - 23

173 m²
Classe energetica: F / IPE: 280
Riscaldamento: nd
Stato immobile: Buono
3 Camere
1 Bagni
1 Cucina
1 Soggiorno
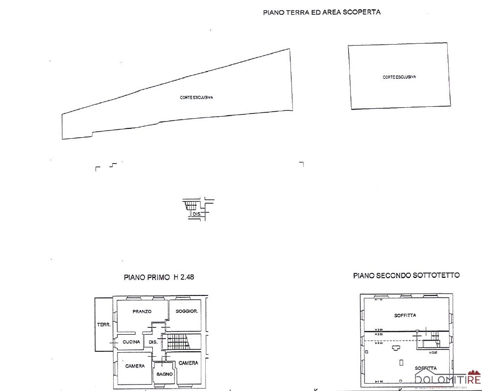
Località Santa Caterina - Appartamento al piano primo, in buone condizioni generali, già abitabile, in quanto oggetto di alcuni interventi di rinnovamento nel corso degli anni, composto da ingresso, cucina e zona pranzo-soggiorno con caminetto, tre camere, bagno con vasca e doccia, ampio terrazzo. Dispone di portoncino blindato e di infissi recenti con vetrocamera. Della proprietà fanno parte una spaziosa soffitta, della superficie dell'appartamento, facilmente raggiungibile da una scala esclusiva e due comodi posti auto scoperti esclusivi. No spese condominiali

Ponte nelle Alpi - RIONE SANTA CATERINA - 23