In vendita

Appartamento - Perarolo di Cadore CARALTE

Perarolo di Cadore

Perarolo di Cadore CARALTE - via Caralte - 37

161 m²
Classe energetica: F / IPE: 1
Riscaldamento: centralizzatocontabilizzatore Gas metano Termosifoni
Stato immobile: Buono
3 Camere
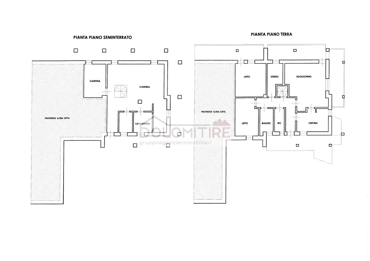
3 Bagni
1 Garage
1 Cantina
Nella frazione di Caralte in Comune di Perarolo di Cadore vendiamo in esclusiva grande appartamento disposto su due livelli, piano seminterrato e rialzato con ingresso indipendente, composto da ingresso, cucina abitabile, soggiorno-pranzo, camera matrimoniale, camera doppia e cameretta, doppi servizi, poggiolo su due lati, scala interna di collegamento al piano seminterrato formato da grande taverna con caminetto in pietra, zona cottura, due grandi cantine, bagno w.c., e lavanderia. Box auto, Ottima posizione panoramica.

Perarolo di Cadore CARALTE - via Caralte - 37